Back to Four Bays and Upwards
Four Bays and Upwards - WS00669
This is a building we have previously constructed which you may want to use as a starting point for your design. All our buildings are designed and manufactured to your individual specifications.
Details
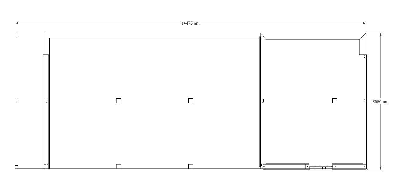
This oak framed garage is formed of four bays, three open and one enclosed. The enclosed bay is accessed via a half glazed door to the front and a mullion window. It is designed to be used as a store or a workshop, and has an enclosed store to the right side. To the left of the building is an open logstore.
Dimensions
| G/F Area (sq m) | 81.06 |
| F/F Area (sq m) | 24.93 |
| Total Area (sq m) | 105.99 |
| Length (m) | 14.475 |
| Depth (m) | 5.6 |
| Ridge Height (m) | 5.3 |
| Roof Pitch (deg) | 45 |
| Number of Bays | 4 |
| Location | Hampshire |




