Back to Two Bay Oak Garages with Upper Floors
Two Bay Oak Garages with Upper Floors - WS00667
This is a building we have previously constructed which you may want to use as a starting point for your design. All our buildings are designed and manufactured to your individual specifications.
Details
This oak framed two storey garage is formed of two enclosed bays, with access via the open left side of the building. To the right there is an external oak staircase with a solid single door to access the first floor. On the left side there is a three pane window. To the rear of the building there is an enclosed logstore.
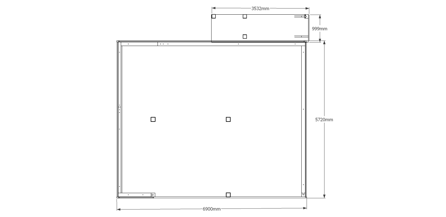
Dimensions
| G/F Area (sq m) | 38.22 |
| F/F Area (sq m) | 21.36 |
| Total Area (sq m) | 59.58 |
| Length (m) | 6.8 |
| Depth (m) | 6.63 |
| Ridge Height (m) | 6.39 |
| Roof Pitch (deg) | 45 |
| Number of Bays | 2 |
| Location | Surrey |
| Ridge Height (m) | Two Storey |




