Back to Oak Framed Complexes
Oak Framed Complexes - WS00655
This is a building we have previously constructed which you may want to use as a starting point for your design. All our buildings are designed and manufactured to your individual specifications.
Details
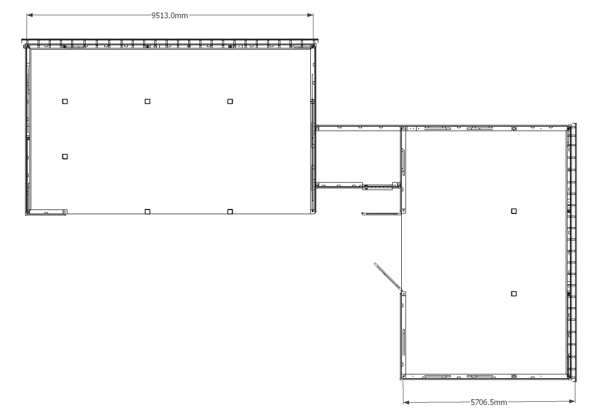
This oak framed complex is designed in an ‘L’ shape, formed of three different frames. The first frame is a three bay open garage with an enclosed logstore to the left side. The second frame is a small link building, with access via a single door to the front and a mullion window. The third frame is a three bay garage with an enclosed store to the rear. Access is via a set of garage doors to the front and a mullion window to the front and right side.
Dimensions
| G/F Area (sq m) | 105.96 |
| Total Area (sq m) | 105.96 |
| Length (m) | 18.04 |
| Depth (m) | 11.06 |
| Ridge Height (m) | 3.694 |
| Roof Pitch (deg) | 35 |
| Number of Bays | 7 |
| Location | Suffolk |



