Back to Three Bay Oak Garages with Upper Floors
Three Bay Oak Garages with Upper Floors - WS00652
This is a building we have previously constructed which you may want to use as a starting point for your design. All our buildings are designed and manufactured to your individual specifications.
Details
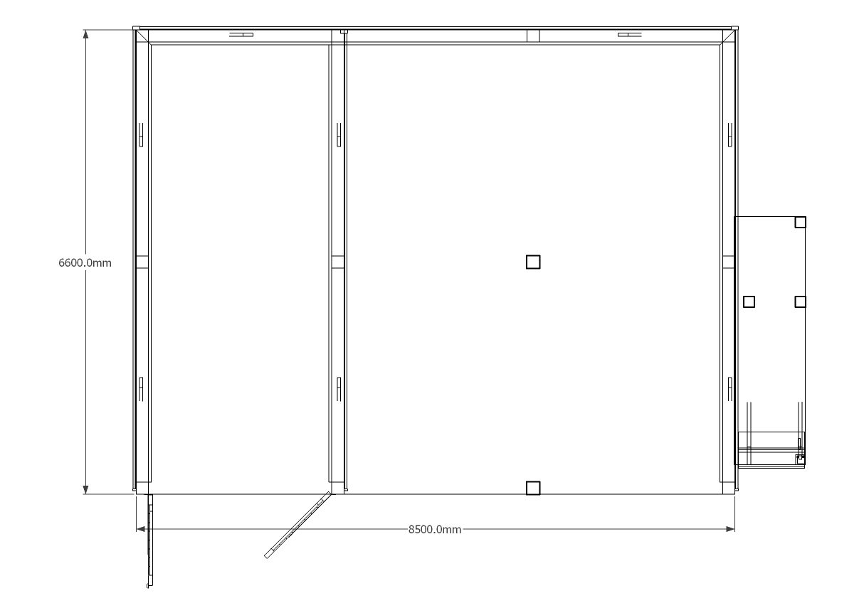
This two storey oak framed three bay garage has an external oak staircase to the right side. Two bays are open and one enclosed, with access to the closed bay via a set of garage doors. To the left of the building there are two three pane windows; one to the first floor and one to the ground floor. There are trimmings for three rooflights to the front, and the first floor is accessed via a single solid door.
Dimensions
| G/F Area (sq m) | 56.1 |
| F/F Area (sq m) | 39.1 |
| Total Area (sq m) | 95.2 |
| Length (m) | 8.5 |
| Depth (m) | 6.6 |
| Ridge Height (m) | 5.762 |
| Roof Pitch (deg) | 45 |
| Number of Bays | 3 |
| Location | Wiltshire |
| Ridge Height (m) | Two Storey |



