Back to Three Bay Oak Garages with Upper Floors
Three Bay Oak Garages with Upper Floors - WS00651
This is a building we have previously constructed which you may want to use as a starting point for your design. All our buildings are designed and manufactured to your individual specifications.
Details
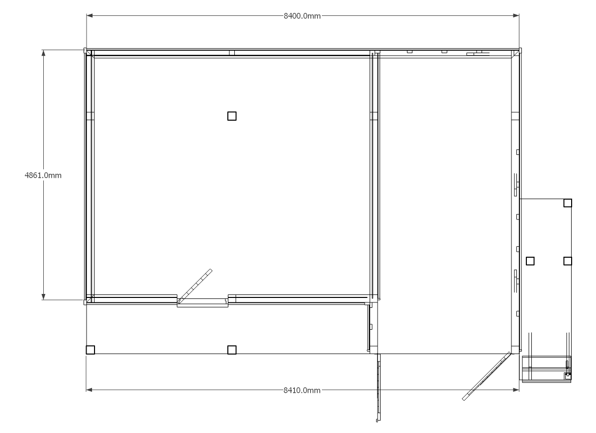
This two storey oak framed complex has three bays. There is an external staircase leading up towards the first floor. There are three rooflights at the front of the building. The third bay is secured with garage doors. The other two bays are enclosed and used as a storeroom which is accessed by the single door. There are also two three pane windows to the store.
Dimensions
| G/F Area (sq m) | 49.56 |
| F/F Area (sq m) | 32.76 |
| Total Area (sq m) | 82.32 |
| Length (m) | 9.41 |
| Depth (m) | 5.9 |
| Ridge Height (m) | 5.283 |
| Roof Pitch (deg) | 50 |
| Number of Bays | 3 |
| Location | Hertfordshire |
| Ridge Height (m) | Two Storey |



