Back to Four Bays And Upwards with Upper Floors
Four Bays And Upwards with Upper Floors - WS00644
This is a building we have previously constructed which you may want to use as a starting point for your design. All our buildings are designed and manufactured to your individual specifications.
Details
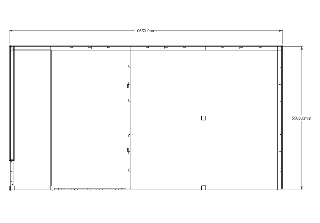
This oak framed garage is formed of four bays, with an upper floor. Two of the bays are enclosed and accessed by a set of garage doors. The other two bays are open to the front. Access to the first floor is via a hatch in the enclosed bays. To the first floor there are three dormers; one to the front and two to the rear. The front dormer has a three pane window and the rear dormers have two pane windows. The left and right hand sides have a three pane window.
Dimensions
| G/F Area (sq m) | 59.64 |
| F/F Area (sq m) | 37.98 |
| Total Area (sq m) | 97.62 |
| Length (m) | 10.65 |
| Depth (m) | 5.6 |
| Ridge Height (m) | 5.253 |
| Roof Pitch (deg) | 45 |
| Number of Bays | 4 |
| Location | Kent |




