Back to Home Leisure Buildings
Home Leisure Buildings - WS00629
This is a building we have previously constructed which you may want to use as a starting point for your design. All our buildings are designed and manufactured to your individual specifications.
Details
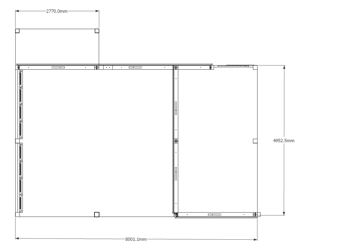
This is an oak framed building with three bays on the left hand side there is two sets of fully glazed units. Two of the bays are open and the other bay is enclosed which can be accessed by the wide door at the rear of the building.
Dimensions
| G/F Area (sq m) | 43.31 |
| Total Area (sq m) | 43.31 |
| Length (m) | 8 |
| Depth (m) | 6.2 |
| Ridge Height (m) | 4.53 |
| Roof Pitch (deg) | 40 |
| Number of Bays | 3 |
| Location | Belgium |



