Back to Three Bay Oak Garages
Three Bay Oak Garages - WS00621
This is a building we have previously constructed which you may want to use as a starting point for your design. All our buildings are designed and manufactured to your individual specifications.
Details
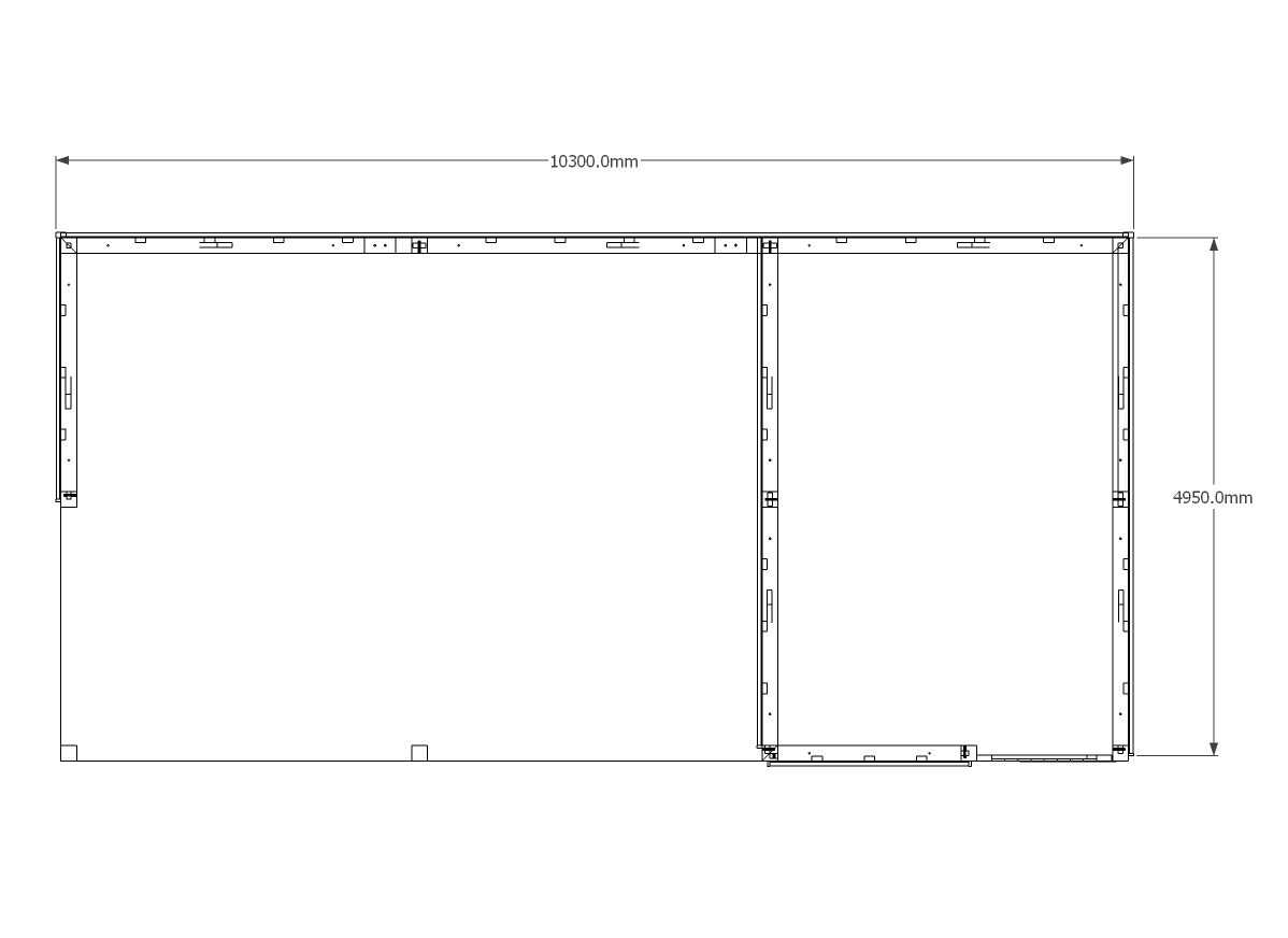
This oak framed garage has three bays, with two open bays and one enclosed. The enclosed bay can function as a storage area or workshop and is accessed by one solid single door to the front.
Dimensions
| G/F Area (sq m) | 51 |
| Total Area (sq m) | 51 |
| Length (m) | 10.3 |
| Depth (m) | 4.95 |
| Ridge Height (m) | 4.5 |
| Roof Pitch (deg) | 40 |
| Number of Bays | 3 |
| Location | Belgium |



