Back to Home Leisure Buildings
Home Leisure Buildings - WS00620
This is a building we have previously constructed which you may want to use as a starting point for your design. All our buildings are designed and manufactured to your individual specifications.
Details
This oak framed home leisure building has one enclosed bay for use as a workshop or a storage facility with an enclosed log store on the side. The other bays have full length windows and the single bay has a mullion window to the front.
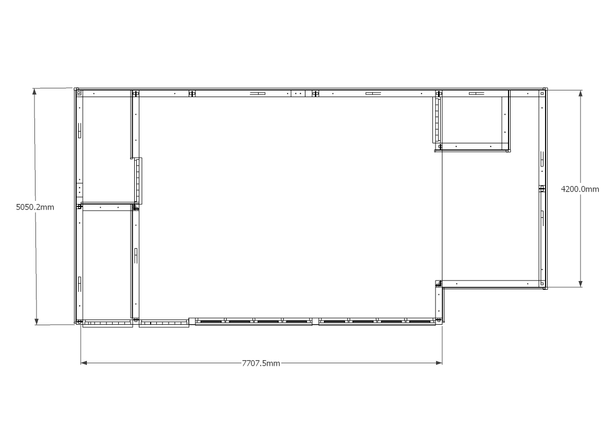
Dimensions
| G/F Area (sq m) | 48.24 |
| Total Area (sq m) | 48.24 |
| Length (m) | 10 |
| Depth (m) | 5 |
| Ridge Height (m) | 4.5 |
| Roof Pitch (deg) | 40 |
| Number of Bays | 4 |
| Location | Belgium |



