Back to Three Bay Oak Garages
Three Bay Oak Garages - WS00607
This is a building we have previously constructed which you may want to use as a starting point for your design. All our buildings are designed and manufactured to your individual specifications.
Details
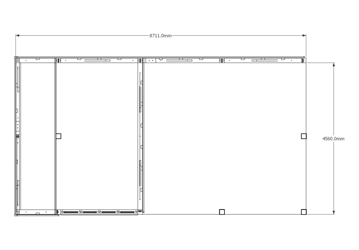
A three bay open oak frame garage
Dimensions
| G/F Area (sq m) | 40.89 |
| Total Area (sq m) | 40.89 |
| Length (m) | 8.7 |
| Depth (m) | 4.7 |
| Ridge Height (m) | 4.395 |
| Roof Pitch (deg) | 40 |
| Number of Bays | 3 |
| Location | Belgium |



