Back to Home Leisure Buildings
Home Leisure Buildings - WS00597
This is a building we have previously constructed which you may want to use as a starting point for your design. All our buildings are designed and manufactured to your individual specifications.
Details
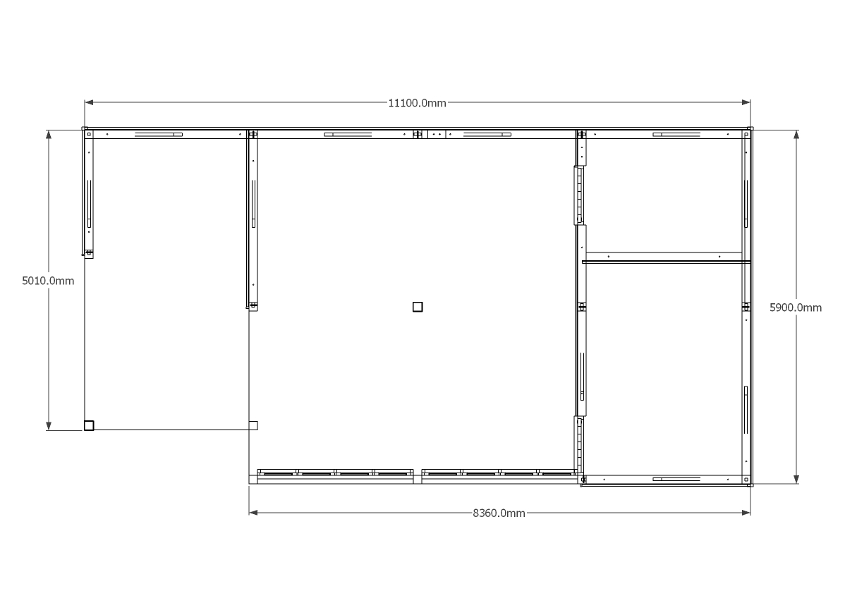
This oak framed home leisure building is comprised of two frames; one is an open garage bay which is attached on the right side to a large three bay garden room with full length glazing to two of the front bays. The third bay is enclosed by partitions and is a store or workshop, with a mullion window to the front and access via a single door on the left.
Dimensions
| G/F Area (sq m) | 79.19 |
| Total Area (sq m) | 79.19 |
| Length (m) | 11.1 |
| Depth (m) | 5.9 |
| Ridge Height (m) | 4.89 |
| Roof Pitch (deg) | 40 |
| Number of Bays | 4 |
| Location | Belgium |



