Back to Garden Rooms and Orangeries
Garden Rooms and Orangeries - WS00595
Also in: Home Leisure Buildings
This is a building we have previously constructed which you may want to use as a starting point for your design. All our buildings are designed and manufactured to your individual specifications.
Details
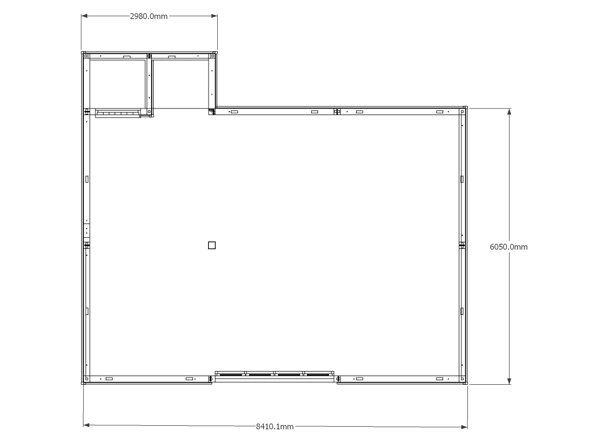
This oak framed home leisure building is formed of three bays and has full length glazing in the centre where two panes open as doors. The other two bays at have full width windows sitting on a low weatherboarded wall. Also at the rear is an enclosed store covering one bay width which is used as a toilet.
Dimensions
| G/F Area (sq m) | 53.62 |
| Total Area (sq m) | 53.62 |
| Length (m) | 8.36 |
| Depth (m) | 7.2 |
| Ridge Height (m) | 4.56 |
| Roof Pitch (deg) | 35 |
| Number of Bays | 3 |
| Location | Belgium |



