Back to Two Bay Oak Garages
Two Bay Oak Garages - WS00594
This is a building we have previously constructed which you may want to use as a starting point for your design. All our buildings are designed and manufactured to your individual specifications.
Details
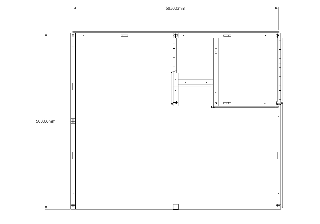
This oak framed garage has two open bays and internal partitions in the right bay to make a small store. This store is accessed via a set of double doors on the right hand side.
Dimensions
| G/F Area (sq m) | 29.15 |
| Total Area (sq m) | 29.15 |
| Length (m) | 5.83 |
| Depth (m) | 5 |
| Ridge Height (m) | 3.88 |
| Roof Pitch (deg) | 30 |
| Number of Bays | 2 |
| Location | Belgium |



