Back to Four Bays And Upwards with Upper Floors
Four Bays And Upwards with Upper Floors - WS00576
This is a building we have previously constructed which you may want to use as a starting point for your design. All our buildings are designed and manufactured to your individual specifications.
Details
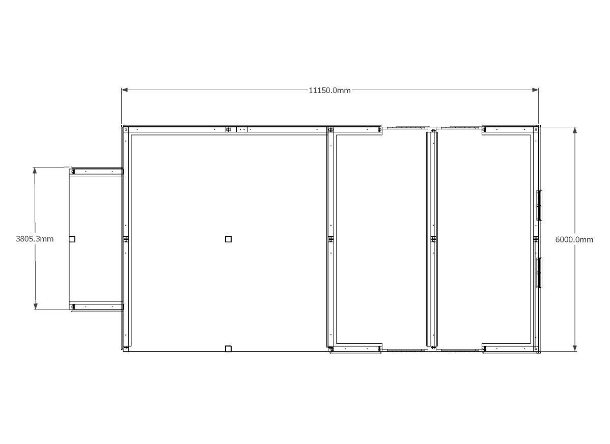
This oak framed building has two open fronted garage bays and two bays partitioned off to form two workshop areas. Each of these workshops has a wide solid door front and rear and the end one has two pane casement windows. The first floor is used for storage and is accessed via a hatch. The building has gable ends and a hay barn style single solid door in the first floor right gable and a small store building on the left hand side.
Dimensions
| G/F Area (sq m) | 72 |
| F/F Area (sq m) | 44.4 |
| Total Area (sq m) | 116.4 |
| Length (m) | 12.54 |
| Depth (m) | 6 |
| Ridge Height (m) | 5.45 |
| Roof Pitch (deg) | 45 |
| Number of Bays | 4 |
| Location | Wiltshire |



