Back to Two Bay Oak Garages
Two Bay Oak Garages - WS00572
This is a building we have previously constructed which you may want to use as a starting point for your design. All our buildings are designed and manufactured to your individual specifications.
Details
This is an open fronted two bay oak framed garage with gable ends and an enclosed store at the rear and an open one on the left hand side used as a log store.
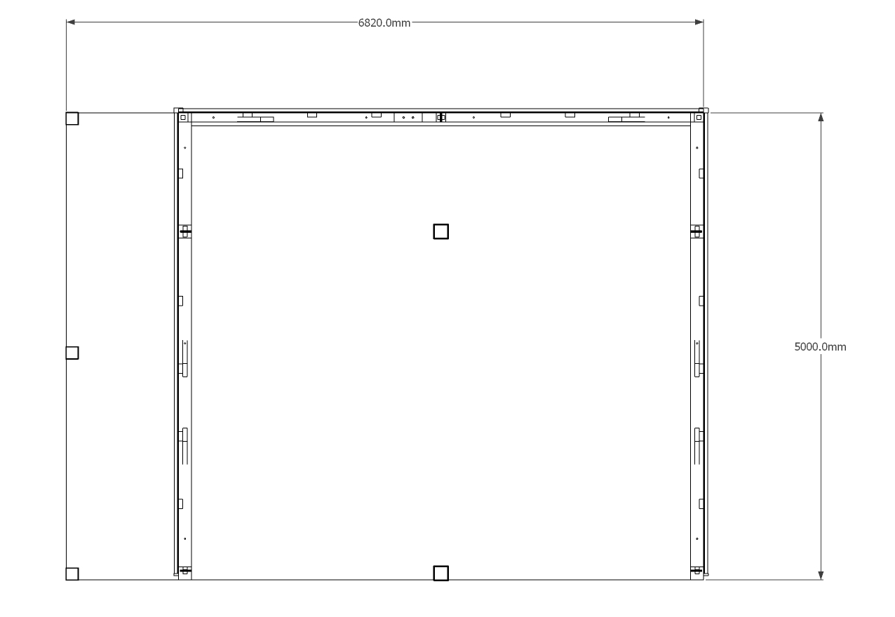
Dimensions
| G/F Area (sq m) | 34.1 |
| Total Area (sq m) | 34.1 |
| Length (m) | 6.82 |
| Depth (m) | 5 |
| Ridge Height (m) | 3.76 |
| Roof Pitch (deg) | 35 |
| Number of Bays | 2 |
| Location | Powys |



