Back to Three Bay Oak Garages
Three Bay Oak Garages - WS00543
This is a building we have previously constructed which you may want to use as a starting point for your design. All our buildings are designed and manufactured to your individual specifications.
Details
This three bay oak framed garage has hipped ends and an enclosed logstore at the rear and an open logstore to the right hand side. One bay is enclosed with a partition and pair of garage doors and the other two parking bays are open fronted.
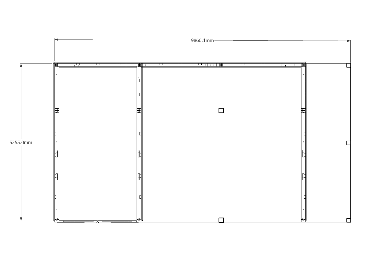
Dimensions
| G/F Area (sq m) | 52.26 |
| Total Area (sq m) | 52.26 |
| Length (m) | 9.86 |
| Depth (m) | 5.3 |
| Ridge Height (m) | 4 |
| Roof Pitch (deg) | 40 |
| Number of Bays | 3 |
| Location | Avon |



