Back to Two Bay Oak Garages
Two Bay Oak Garages - WS00539
This is a building we have previously constructed which you may want to use as a starting point for your design. All our buildings are designed and manufactured to your individual specifications.
Details
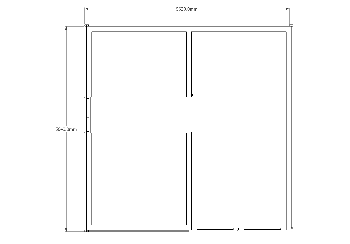
This is a two bay oak framed building with one bay as an enclosed workshop and the other bay a secure parking space with garage doors on the front. There are two solid single doors, one into the workshop and the other one between the workshop and the garage.
Dimensions
| G/F Area (sq m) | 31.47 |
| Total Area (sq m) | 31.47 |
| Length (m) | 5.62 |
| Depth (m) | 5.6 |
| Ridge Height (m) | 4 |
| Roof Pitch (deg) | 40 |
| Number of Bays | 2 |
| Location | Kent |



