Back to Three Bay Oak Garages with Upper Floors
Three Bay Oak Garages with Upper Floors - WS00533
This is a building we have previously constructed which you may want to use as a starting point for your design. All our buildings are designed and manufactured to your individual specifications.
Details
This is a three bay open fronted oak framed garage with rear catslide along two of the bays. The external oak staircase leads up to a solid single door to access the first floor. There are two rooflights to get some natural light into the upstairs space.
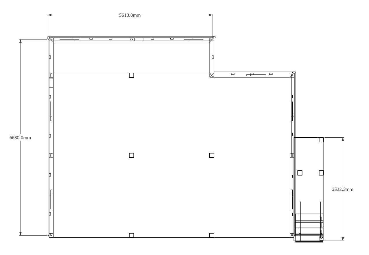
Dimensions
| G/F Area (sq m) | 53.17 |
| F/F Area (sq m) | 30.24 |
| Total Area (sq m) | 83.41 |
| Length (m) | 8.4 |
| Depth (m) | 6.8 |
| Ridge Height (m) | 5.3 |
| Roof Pitch (deg) | 45 |
| Number of Bays | 3 |
| Location | Kent |



