Back to Three Bay Oak Garages with Upper Floors
Three Bay Oak Garages with Upper Floors - WS00531
This is a building we have previously constructed which you may want to use as a starting point for your design. All our buildings are designed and manufactured to your individual specifications.
Details
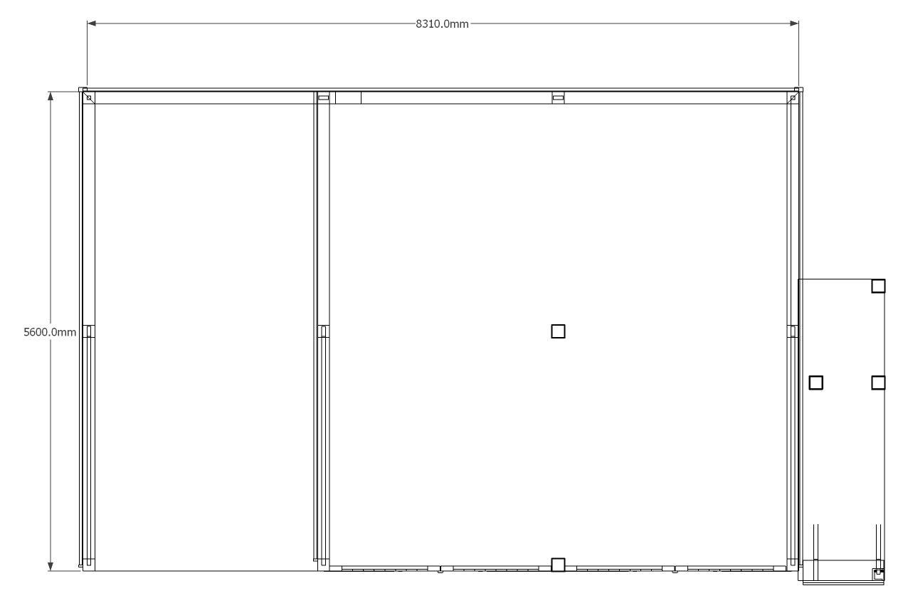
This oak framed garage with an upper floor is formed of three bays. The first bay is open fronted and the other two are accessed via two sets of garage doors to the front. The first floor is accessed via an external oak staircase to the right side and a single solid door. There are trimmings for three rooflights and a two pane window on the left side.
Dimensions
| G/F Area (sq m) | 46.4 |
| Total Area (sq m) | 46.4 |
| Length (m) | 8.3 |
| Depth (m) | 5.6 |
| Ridge Height (m) | 5.25 |
| Roof Pitch (deg) | 45 |
| Number of Bays | 3 |
| Location | Suffolk |



