Back to Oak Framed Houses
Oak Framed Houses - WS00521
This is a building we have previously constructed which you may want to use as a starting point for your design. All our buildings are designed and manufactured to your individual specifications.
Details
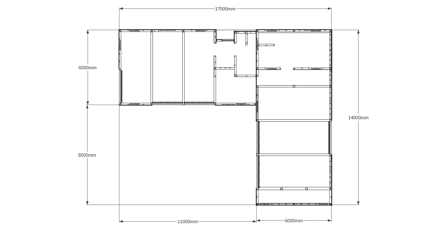
This oak framed house is designed in an ‘L’ shape and is formed of two separate frames.The first has four enclosed bays with full length glazing on the left side and two the front of the middle bays. There is a single door to the rear and the first floor is accessed via an internal staircase. The second frame has five enclosed bays and an enclosed logstore to the right side. Two of the bays have full length glazing to the front and one to the rear, as well as two sets of two pane windows.
Dimensions
| G/F Area (sq m) | 150 |
| F/F Area (sq m) | 31.64 |
| Total Area (sq m) | 181.64 |
| Length (m) | 17 |
| Depth (m) | 14 |
| Ridge Height (m) | 5.45 |
| Roof Pitch (deg) | 45 |
| Number of Bays | 9 |
| Location | Belgium |




