Back to Four Bays and Upwards
Four Bays and Upwards - WS00516
Also in: Oak Framed Complexes
This is a building we have previously constructed which you may want to use as a starting point for your design. All our buildings are designed and manufactured to your individual specifications.
Details
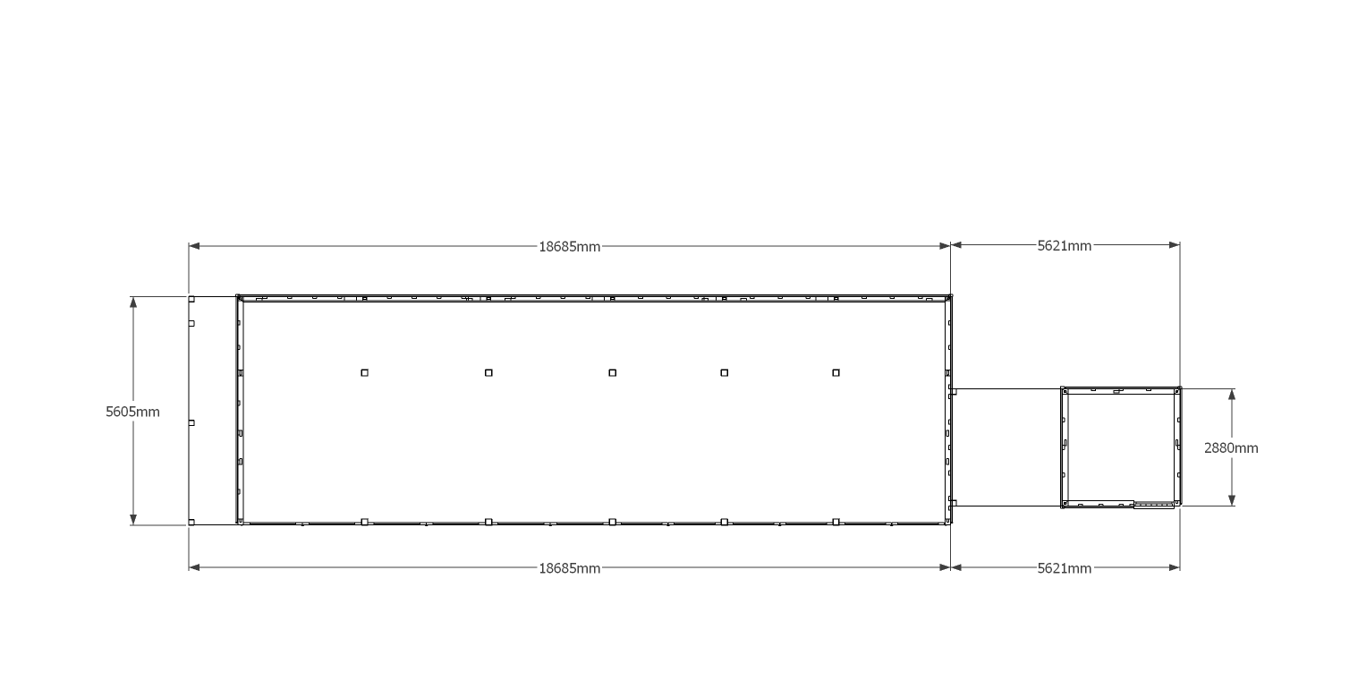
This oak building comprises of a six bay garage which has garage doors on the front of each bay and a log store on the left hand side. Attached to this is a two bay oak frame where one bay is an enclosed store with a solid single door and mullion window and the other bay is open front and back to form a drive through garage.
Dimensions
| G/F Area (sq m) | 120.34 |
| Total Area (sq m) | 120.34 |
| Length (m) | 24.3 |
| Depth (m) | 5.6 |
| Ridge Height (m) | 4 |
| Roof Pitch (deg) | 40 |
| Number of Bays | 8 |
| Location | Surrey |




