Back to Home Leisure Buildings
Home Leisure Buildings - WS00489
This is a building we have previously constructed which you may want to use as a starting point for your design. All our buildings are designed and manufactured to your individual specifications.
Details
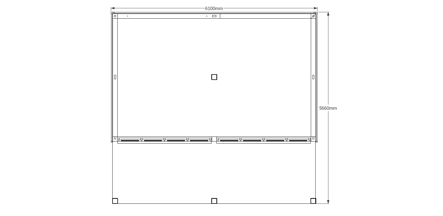
This oak frame is a small summerhouse/garden room. The front glazed units, which are both opening, are set back to create a covered sitting area. The roof is hipped and has a catslide at the rear.
Dimensions
| G/F Area (sq m) | 34.53 |
| Total Area (sq m) | 34.53 |
| Length (m) | 6.1 |
| Depth (m) | 5.66 |
| Ridge Height (m) | 4 |
| Roof Pitch (deg) | 40 |
| Number of Bays | 2 |
| Location | Buckinghamshire |



