Back to Four Bays And Upwards with Upper Floors
Four Bays And Upwards with Upper Floors - WS00487
This is a building we have previously constructed which you may want to use as a starting point for your design. All our buildings are designed and manufactured to your individual specifications.
Details
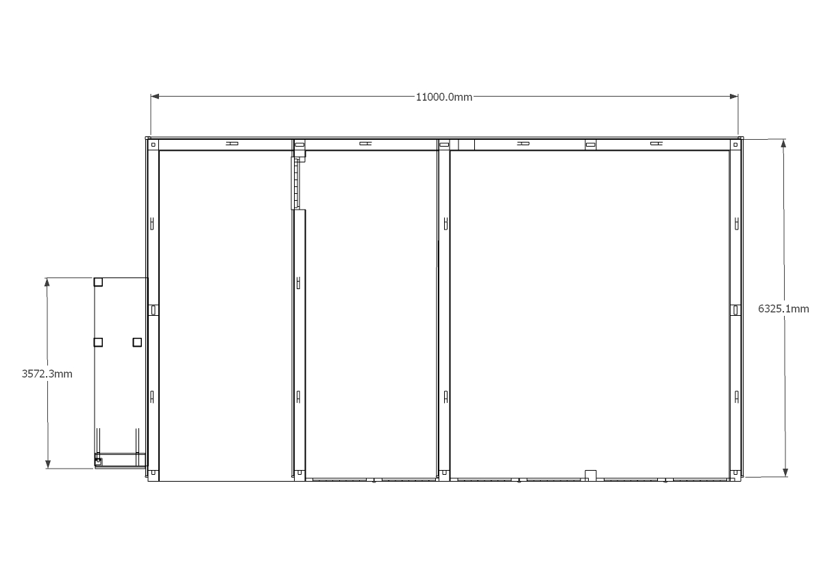
This oak framed garage with first floor has one open fronted parking space and three enclosed spaces that have garage doors on the front. There is an external oak staircase leading to a solid single door which accesses the first floor. The upstairs is one open space and there are three rooflights on the rear elevation, one of which is a means of escape.
Dimensions
| G/F Area (sq m) | 74.6 |
| F/F Area (sq m) | 48.84 |
| Total Area (sq m) | 123.44 |
| Length (m) | 12.11 |
| Depth (m) | 6.4 |
| Ridge Height (m) | 5.7 |
| Roof Pitch (deg) | 45 |
| Number of Bays | 4 |
| Location | Norfolk |



