Back to Three Bay Oak Garages with Upper Floors
Three Bay Oak Garages with Upper Floors - WS00468
This is a building we have previously constructed which you may want to use as a starting point for your design. All our buildings are designed and manufactured to your individual specifications.
Details
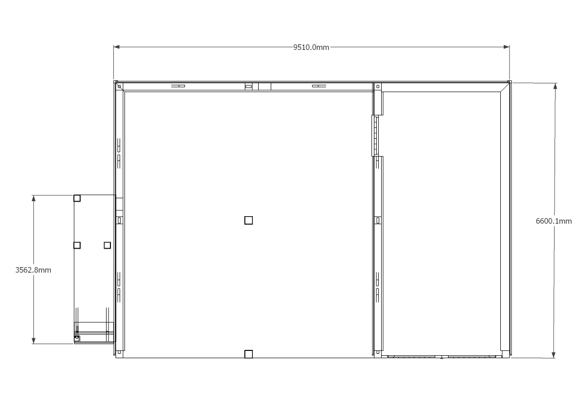
This oak building is a three bay full depth garage with barn hip ends. There is one enclosed bay with a partition, garage doors and a solid single door whilst the other two bays are open fronted. There is an external oak staircase which leads to the first floor through another solid single door. There is a two pane casement window under the barn hip.
Dimensions
| G/F Area (sq m) | 62.44 |
| F/F Area (sq m) | 43.52 |
| Total Area (sq m) | 105.96 |
| Length (m) | 10.47 |
| Depth (m) | 6.6 |
| Ridge Height (m) | 5.8 |
| Roof Pitch (deg) | 45 |
| Number of Bays | 3 |
| Location | East Sussex |



