Oak Framed Complexes - WS00462
This is a building we have previously constructed which you may want to use as a starting point for your design. All our buildings are designed and manufactured to your individual specifications.
Details
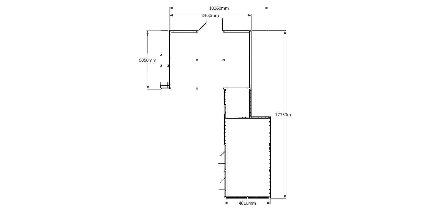
This is a three bay with first floor that is accessed via an oak external staircase and solid single door. The first floor has two dormer windows suitable for a three pane casement window. The ground floor is open with a pair of garage doors to the rear. Attached to this is a small link building which has a three bay oak frame garden room on the end which is used as the office area. The office has a hipped roof with oak warm roof and feature trusses. There is also a Velux GVA rooflight. The full height glazing is our Mullion style and there are fixed units and units with opening doors.
Dimensions
| G/F Area (sq m) | 97.23 |
| F/F Area (sq m) | 33.44 |
| Total Area (sq m) | 130.67 |
| Length (m) | 11.36 |
| Depth (m) | 17.24 |
| Ridge Height (m) | 5.5 |
| Roof Pitch (deg) | 45 |
| Number of Bays | 7 |
| Location | Surrey |





