Back to Oak Framed Complexes
Oak Framed Complexes - WS00460
This is a building we have previously constructed which you may want to use as a starting point for your design. All our buildings are designed and manufactured to your individual specifications.
Details
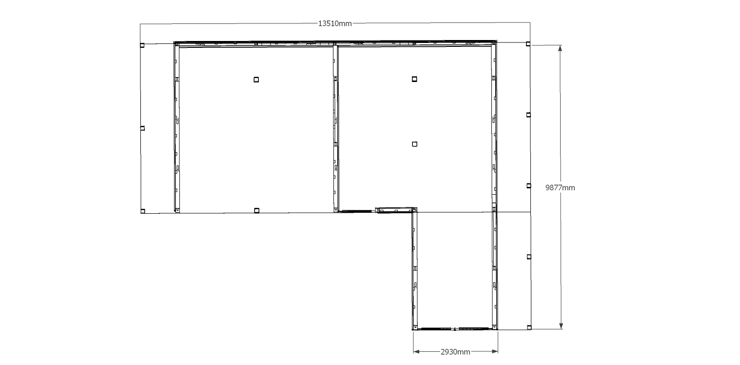
This oak frame complex is comprised of two frames. The first is a four bay garage with gable ends and catslide roofs to the rear and both ends. There are two open fronted bays and the other two are enclosed, one using a partition with solid single door and window in it, and the other by the second one bay frame with attached to the front and is secured with a pair of garage doors on the front. This building also has a log store on the right hand side.
Dimensions
| G/F Area (sq m) | 96.4 |
| Total Area (sq m) | 96.4 |
| Length (m) | 13.5 |
| Depth (m) | 10 |
| Ridge Height (m) | 4.4 |
| Roof Pitch (deg) | 40 |
| Number of Bays | 5 |
| Location | Belgium |



