Back to Oak Framed Houses
Oak Framed Houses - WS00455
This is a building we have previously constructed which you may want to use as a starting point for your design. All our buildings are designed and manufactured to your individual specifications.
Details
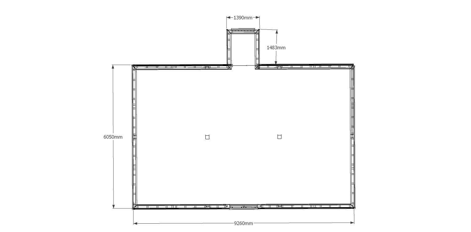
This building is a small oak frame annex that provides one bedroom, one bathroom, lounge and small kitchenette. There is a single enclosed barn entrance on the front to form a small porch area with a half glazed front door. At the rear there is a set of glazed french doors which would lead out into the garden. There are four three pane casement windows and one one rooflight to give natural light into the building.
Dimensions
| G/F Area (sq m) | 57.5 |
| Total Area (sq m) | 57.5 |
| Length (m) | 9.26 |
| Depth (m) | 7.5 |
| Ridge Height (m) | 5 |
| Roof Pitch (deg) | 40 |
| Number of Bays | 3 |
| Location | Devon |




