Back to Oak Framed Complexes
Oak Framed Complexes - WS00450
This is a building we have previously constructed which you may want to use as a starting point for your design. All our buildings are designed and manufactured to your individual specifications.
Details
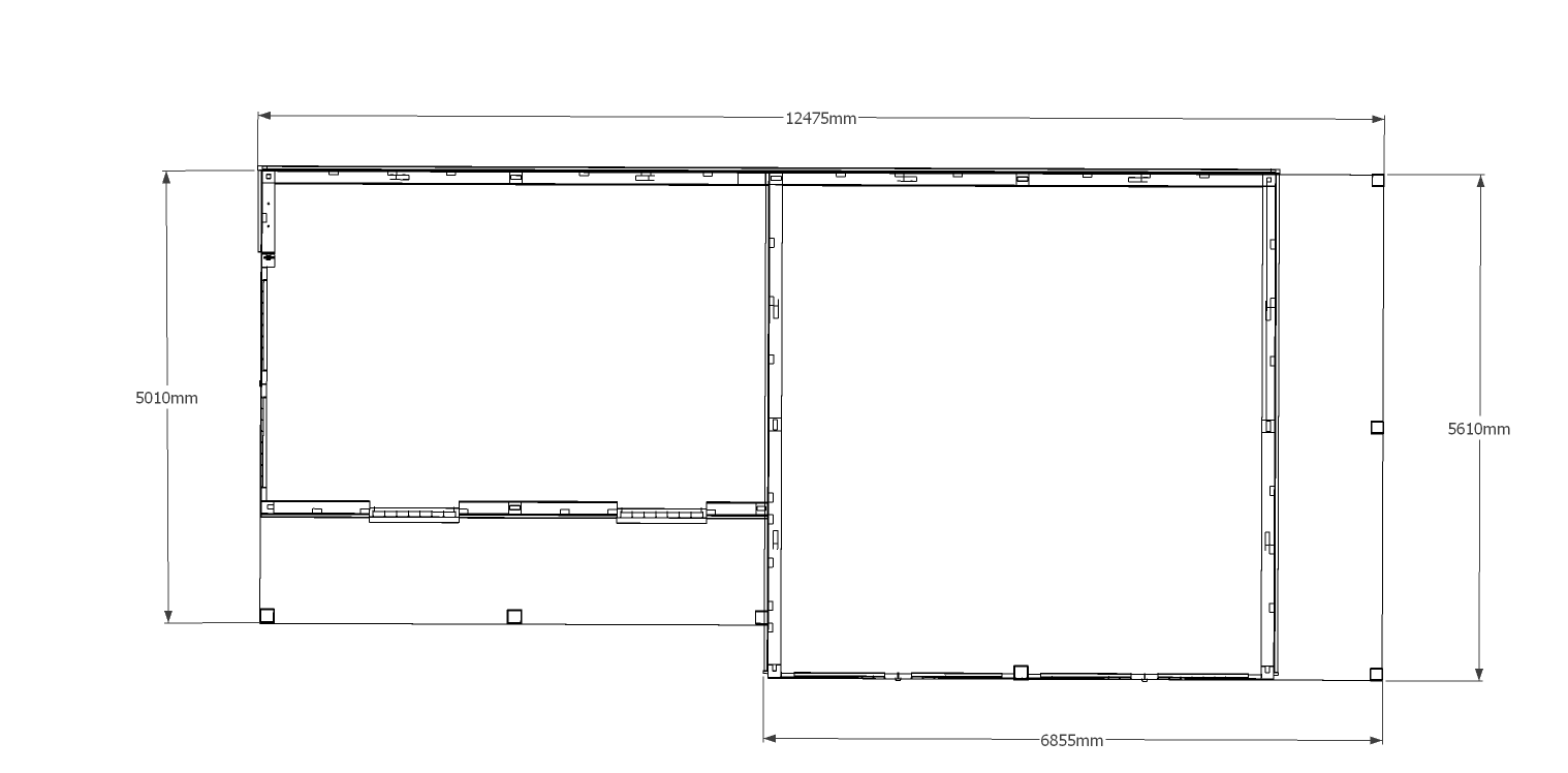
This oak framed complex is formed of two different frames. The first frame is a two bay garage with a set back partition to the front making a porch effect. There is a set of garage doors to the left side and two single doors to the front. The second frame is a two bay garage with two sets of garage doors to the front and an open logstore to the side.
Dimensions
| G/F Area (sq m) | 66.29 |
| Total Area (sq m) | 66.29 |
| Length (m) | 12.43 |
| Depth (m) | 5.6 |
| Ridge Height (m) | 4.55 |
| Roof Pitch (deg) | 40 |
| Number of Bays | 4 |
| Location | Suffolk |




