Back to One Bay Oak Framed Garages
One Bay Oak Framed Garages - WS00443
This is a building we have previously constructed which you may want to use as a starting point for your design. All our buildings are designed and manufactured to your individual specifications.
Details
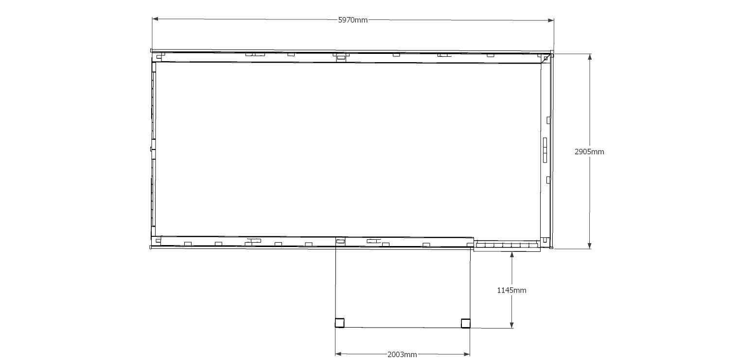
This is a single bay oak framed garage with garage doors on the front and a half glazed door and two 2 pane casement windows. There is also a small log store on the side.
Dimensions
| G/F Area (sq m) | 19.45 |
| Total Area (sq m) | 19.45 |
| Length (m) | 5.92 |
| Depth (m) | 4.08 |
| Ridge Height (m) | 3.7 |
| Roof Pitch (deg) | 40 |
| Number of Bays | 1 |
| Location | Wiltshire |



