Back to Oak Framed Complexes
Oak Framed Complexes - WS00442
Also in: Wooden Garage
This is a building we have previously constructed which you may want to use as a starting point for your design. All our buildings are designed and manufactured to your individual specifications.
Details
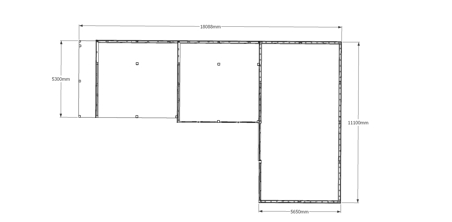
The large building in this oak framed complex is a raised plate design. There is full height glazing to the front of two bays and internally there is a staircase up to the first floor where there are 3 rooflights to allow daylight in. Attached to this frame is a two bay oak garage secured at the front with garage doors. Attached to this frame is an open fronted garage with a catslide roof to the rear and side.
Dimensions
| G/F Area (sq m) | 129.78 |
| F/F Area (sq m) | 39.96 |
| Total Area (sq m) | 169.74 |
| Length (m) | 18.045 |
| Depth (m) | 11.1 |
| Ridge Height (m) | 5.6 |
| Roof Pitch (deg) | 45 |
| Number of Bays | 8 |
| Location | Kent |
| Ridge Height (m) | Raised Plate |




