Back to Oak Barns
Oak Barns - WS00440
Also in: Oak Framed Extensions
Also in: Oak lean to
Also in: Stables and Barns
This is a building we have previously constructed which you may want to use as a starting point for your design. All our buildings are designed and manufactured to your individual specifications.
Details
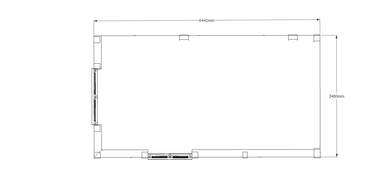
This oak framed flat roofed extension is design to fit into a corner as a garden room extension to a house. The sides are glazed and the glazing sits on dwarf cavity brickwork except where there are the 2 sets of fully glazed doors. The roof on this frame is flat to avoid upstairs windows on the existing property.
Dimensions
| G/F Area (sq m) | 22.39 |
| Total Area (sq m) | 22.39 |
| Length (m) | 6.435 |
| Depth (m) | 3.48 |
| Ridge Height (m) | 4.5 |
| Number of Bays | 3 |
| Location | Hertfordshire |
| Ridge Height (m) | Flat Roof |



