Back to Oak Framed Complexes
Oak Framed Complexes - WS00437
This is a building we have previously constructed which you may want to use as a starting point for your design. All our buildings are designed and manufactured to your individual specifications.
Details
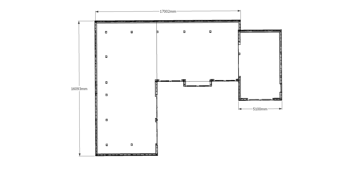
This large oak framed complex has secure car parking spaces and plenty of room for a large workshop and lots of storage. There are six pairs of traditional side hung garage doors, one of which is taller on the barn entrance in the centre. There is a solid single door in the right hand elevation and four mullion windows and 7 Velux rooflights to get natural light into the building.
Dimensions
| G/F Area (sq m) | 227.26 |
| Total Area (sq m) | 227.26 |
| Length (m) | 21.785 |
| Depth (m) | 16 |
| Ridge Height (m) | 5.1 |
| Roof Pitch (deg) | 35 |
| Number of Bays | 11 |
| Location | Hertfordshire |




