Back to Four Bays and Upwards
Four Bays and Upwards - WS00433
This is a building we have previously constructed which you may want to use as a starting point for your design. All our buildings are designed and manufactured to your individual specifications.
Details
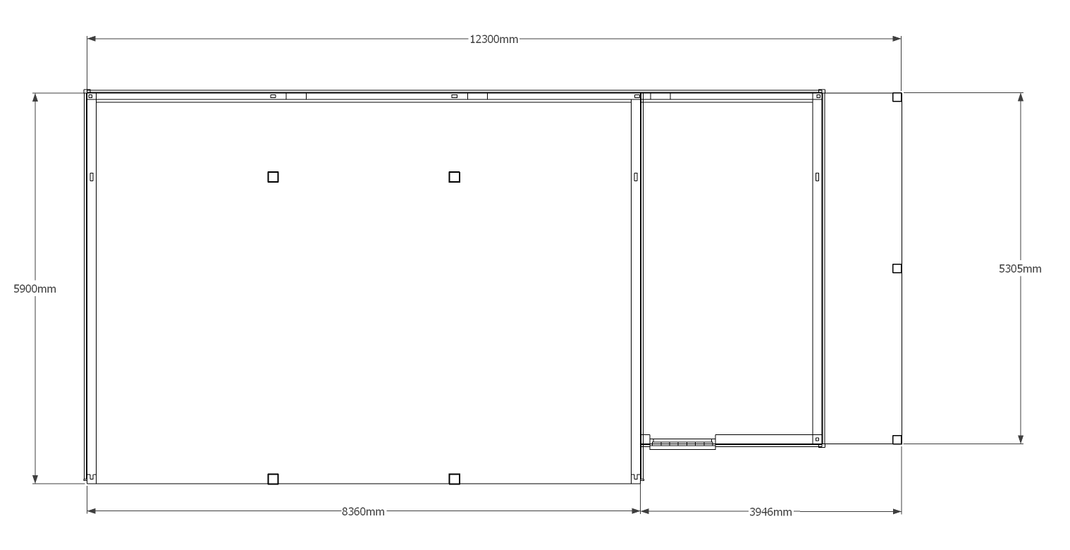
This is a 3 bay open fronted garage with gable ends with a single bay store on the side. The store also has a gable end and a catslide log store on the side. The store is accessed through a solid single door and also has a mullion window.
Dimensions
| G/F Area (sq m) | 70.93 |
| Total Area (sq m) | 70.93 |
| Length (m) | 12.3 |
| Depth (m) | 5.9 |
| Ridge Height (m) | 4.4 |
| Roof Pitch (deg) | 40 |
| Number of Bays | 4 |
| Location | Belgium |



