Back to Three Bay Oak Garages with Upper Floors
Three Bay Oak Garages with Upper Floors - WS00432
This is a building we have previously constructed which you may want to use as a starting point for your design. All our buildings are designed and manufactured to your individual specifications.
Details
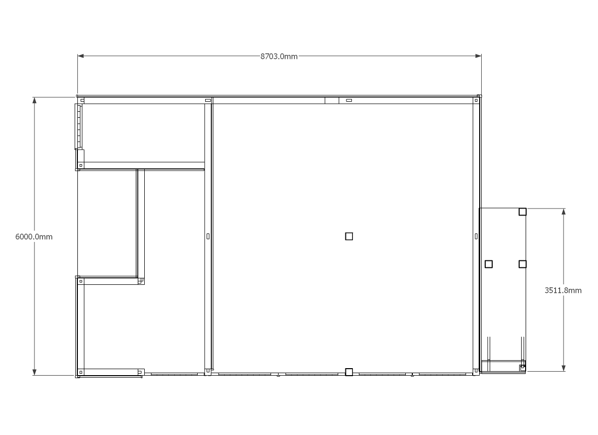
This oak framed three bay garage building has two bays secured with garage doors on the front and the third bay is split into a toilet, small covered storage area and a store/workshop accessed by a solid single door. There is an oak external staircase on the right hand side to access the first floor through a solid single door. The upstairs roof space is one area with a two light casement window in the gable end.
Dimensions
| G/F Area (sq m) | 52.22 |
| F/F Area (sq m) | 34.64 |
| Total Area (sq m) | 86.86 |
| Length (m) | 8.703 |
| Depth (m) | 6 |
| Ridge Height (m) | 5.6 |
| Roof Pitch (deg) | 45 |
| Number of Bays | 3 |
| Location | Kent |



