Back to Oak Framed Extensions
Oak Framed Extensions - WS00429
Also in: Oak lean to
This is a building we have previously constructed which you may want to use as a starting point for your design. All our buildings are designed and manufactured to your individual specifications.
Details
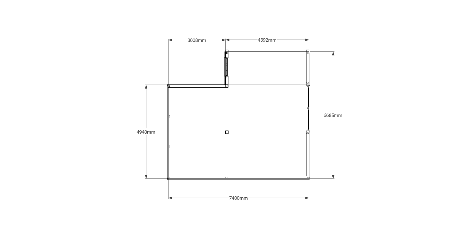
This is an oak framed ‘L’ shaped extension to a property which has a steep roof pitch to match the existing.The external walls are feather edge weatherboarding with various casement windows and one set of wide fully glazed doors.
Dimensions
| G/F Area (sq m) | 44.23 |
| Total Area (sq m) | 44.23 |
| Length (m) | 7.4 |
| Depth (m) | 6.685 |
| Ridge Height (m) | 5.4 |
| Roof Pitch (deg) | 50 |
| Number of Bays | 4 |
| Location | Belgium |




