Back to Oak Porches
Oak Porches - WS00424
This is a building we have previously constructed which you may want to use as a starting point for your design. All our buildings are designed and manufactured to your individual specifications.
Details
This oak framed porch has a feature gable at the front. The sides of this green oak porch are completely open.
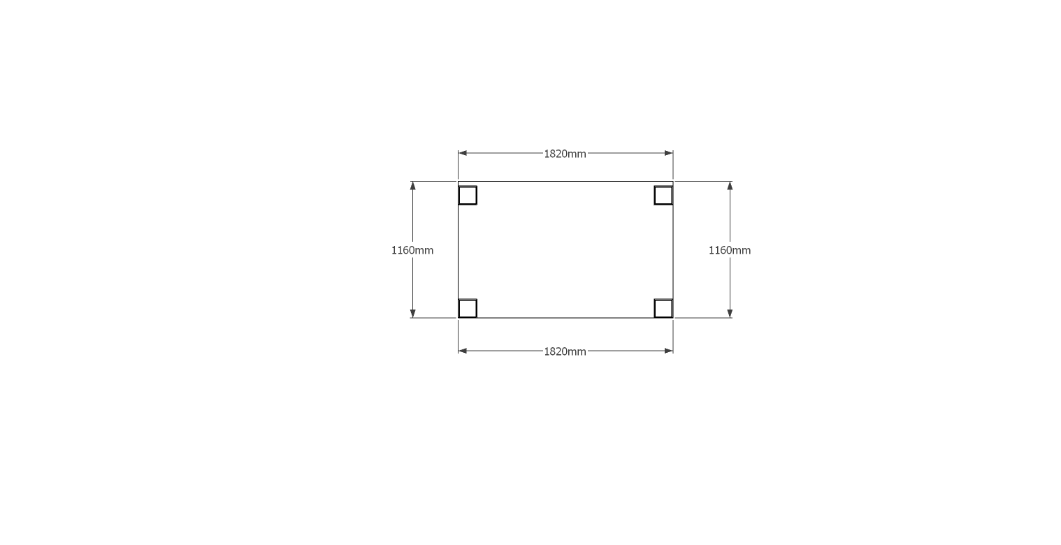
Dimensions
| G/F Area (sq m) | 1.98 |
| Total Area (sq m) | 1.98 |
| Length (m) | 1.8 |
| Depth (m) | 1.1 |
| Ridge Height (m) | 3.2 |
| Roof Pitch (deg) | 36 |
| Number of Bays | 1 |
| Location | Cheshire |



