Back to Oak Framed Complexes

Oak Framed Complexes - WS00420

This is a building we have previously constructed which you may want to use as a starting point for your design. All our buildings are designed and manufactured to your individual specifications.

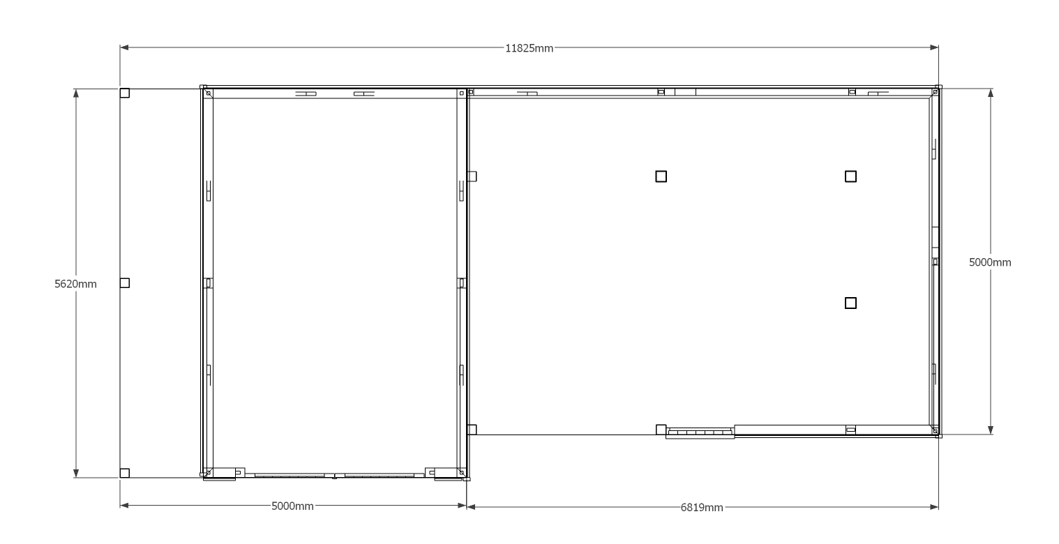
This complex comprises of a single garage with logstore on the side which is secured with a pair of garage doors. Attached to this is a two bay with catslide on side and rear. One bay is open and the other bay has a partition and solid single door and mullion window in the front.
Special Offer

Details

This complex comprises of a single garage with logstore on the side which is secured with a pair of garage doors. Attached to this is a two bay with catslide on side and rear. One bay is open and the other bay has a partition and solid single door and mullion window in the front.

Dimensions

G/F Area (sq m) 62
Total Area (sq m) 62
Length (m) 11.82
Depth (m) 5.62
Ridge Height (m) 4
Roof Pitch (deg) 40
Number of Bays 3
Location Derbyshire