Back to Four Bays and Upwards
Four Bays and Upwards - WS00415
This is a building we have previously constructed which you may want to use as a starting point for your design. All our buildings are designed and manufactured to your individual specifications.
Details
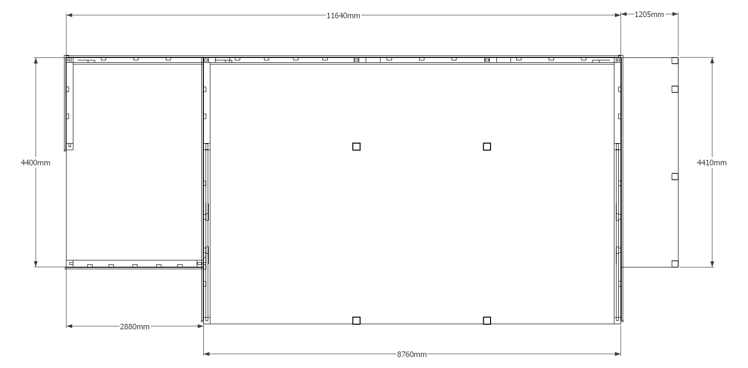
This building is a 3 bay open fronted garage with a log store on the right hand side. On the left side is a single bay which is open on the end and has a mullion window on the front.
Dimensions
| G/F Area (sq m) | 69.6 |
| Total Area (sq m) | 69.6 |
| Length (m) | 12.84 |
| Depth (m) | 5.6 |
| Ridge Height (m) | 4 |
| Roof Pitch (deg) | 40 |
| Number of Bays | 4 |
| Location | Surrey |



