Back to Garden Rooms and Orangeries
Garden Rooms and Orangeries - WS00411
Also in: Home Leisure Buildings
This is a building we have previously constructed which you may want to use as a starting point for your design. All our buildings are designed and manufactured to your individual specifications.
Details
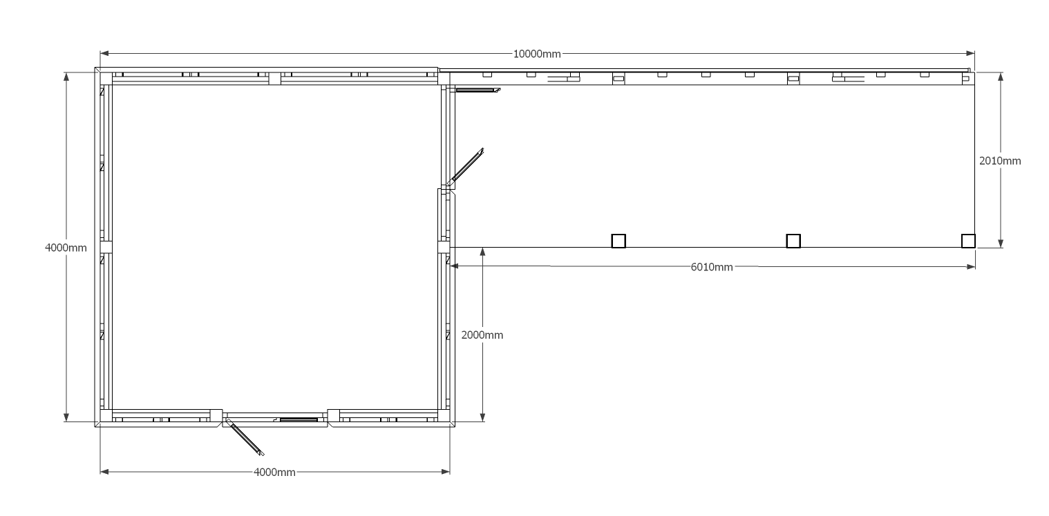
This building comprises of a square garden room fully glazed on all sides and a long open covered area on the right hand side.The garden room has a double hipped roof which is finished off with a leaded finial.
Dimensions
| G/F Area (sq m) | 28 |
| Total Area (sq m) | 28 |
| Length (m) | 10 |
| Depth (m) | 4 |
| Ridge Height (m) | 3.95 |
| Roof Pitch (deg) | 40 |
| Number of Bays | 4 |
| Location | Kent |




