Back to Oak Framed Car Ports
Oak Framed Car Ports - WS00400
Also in: Two Bay Oak Garages
This is a building we have previously constructed which you may want to use as a starting point for your design. All our buildings are designed and manufactured to your individual specifications.
Details
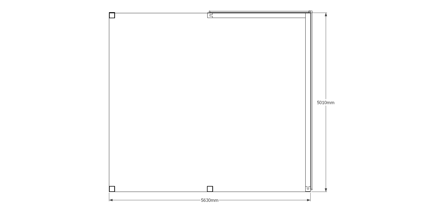
This 2 bay building is a car port with solid sides on the right and half way along the rear. The rest of the building is open sitting on staddle stones.
Dimensions
| G/F Area (sq m) | 28.21 |
| Total Area (sq m) | 28.21 |
| Length (m) | 5.63 |
| Depth (m) | 5.01 |
| Ridge Height (m) | 4.3 |
| Roof Pitch (deg) | 37 |
| Number of Bays | 2 |
| Location | Surrey |



