Oak Barns - WS00383
Also in: Oak Framed Complexes
Also in: Stables and Barns
This is a building we have previously constructed which you may want to use as a starting point for your design. All our buildings are designed and manufactured to your individual specifications.
Details
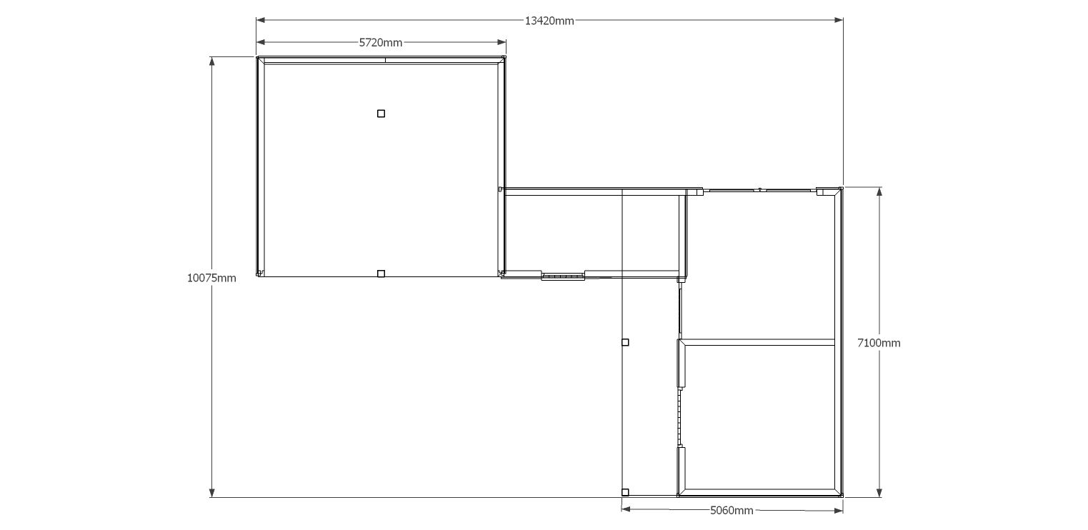
This oak framed complex of buildings comprises of an open fronted two bay garage coonected to a small store, which is accessed via a solid single door and has a two pane casement window in the rear. This in turn is attached to a two bay building which has a roof overhang at the front. One bay is a stable with a stable door and mullion window, the other bay is a feed and hay store which has a wide solid single door at the front and a pair of silid single doors in the end. This room also has a two pane casement window.
Dimensions
| G/F Area (sq m) | 68.5 |
| Total Area (sq m) | 68.5 |
| Length (m) | 13.32 |
| Depth (m) | 10 |
| Roof Pitch (deg) | 30 |
| Number of Bays | 5 |
| Location | Suffolk |




