Back to Four Bays and Upwards
Four Bays and Upwards - WS00378
Also in: Oak Framed Complexes
This is a building we have previously constructed which you may want to use as a starting point for your design. All our buildings are designed and manufactured to your individual specifications.
Details
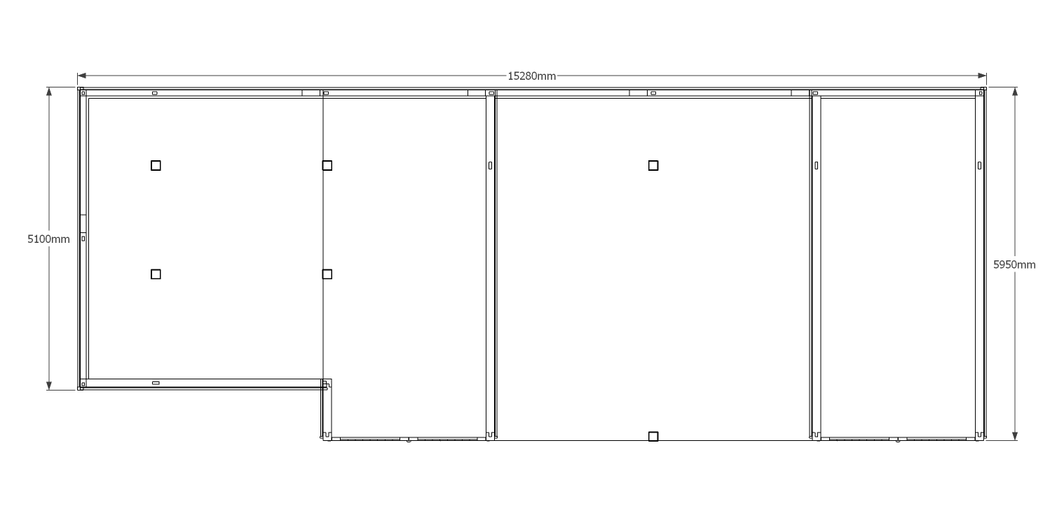
This oak framed complex is formed of two frames. The main building is a four bay garage and has one bay on the right enclosed with a partition and garage doors. The centre 2 bays are open fronted garage bays and the left hand bay has a partition and garage doors. The second building is used as a workshop and storage area. This workshop is accessed through the left hand garage and has one mullion window in the front partition wall.
Dimensions
| G/F Area (sq m) | 85.89 |
| Total Area (sq m) | 85.89 |
| Length (m) | 15.18 |
| Depth (m) | 5.9 |
| Ridge Height (m) | 4.4 |
| Roof Pitch (deg) | 40 |
| Number of Bays | 5 |
| Location | Hampshire |




