Back to Home Leisure Buildings
Home Leisure Buildings - WS00374
This is a building we have previously constructed which you may want to use as a starting point for your design. All our buildings are designed and manufactured to your individual specifications.
Details
This building has a 2 bay garage secured with two pairs of garage doors and a seperate storage area at the rear. The store has a pair of solid doors and two mullion windows whilst the garage has a solid single door in the side. One complete side is infilled with blockwork which has then been rendered.
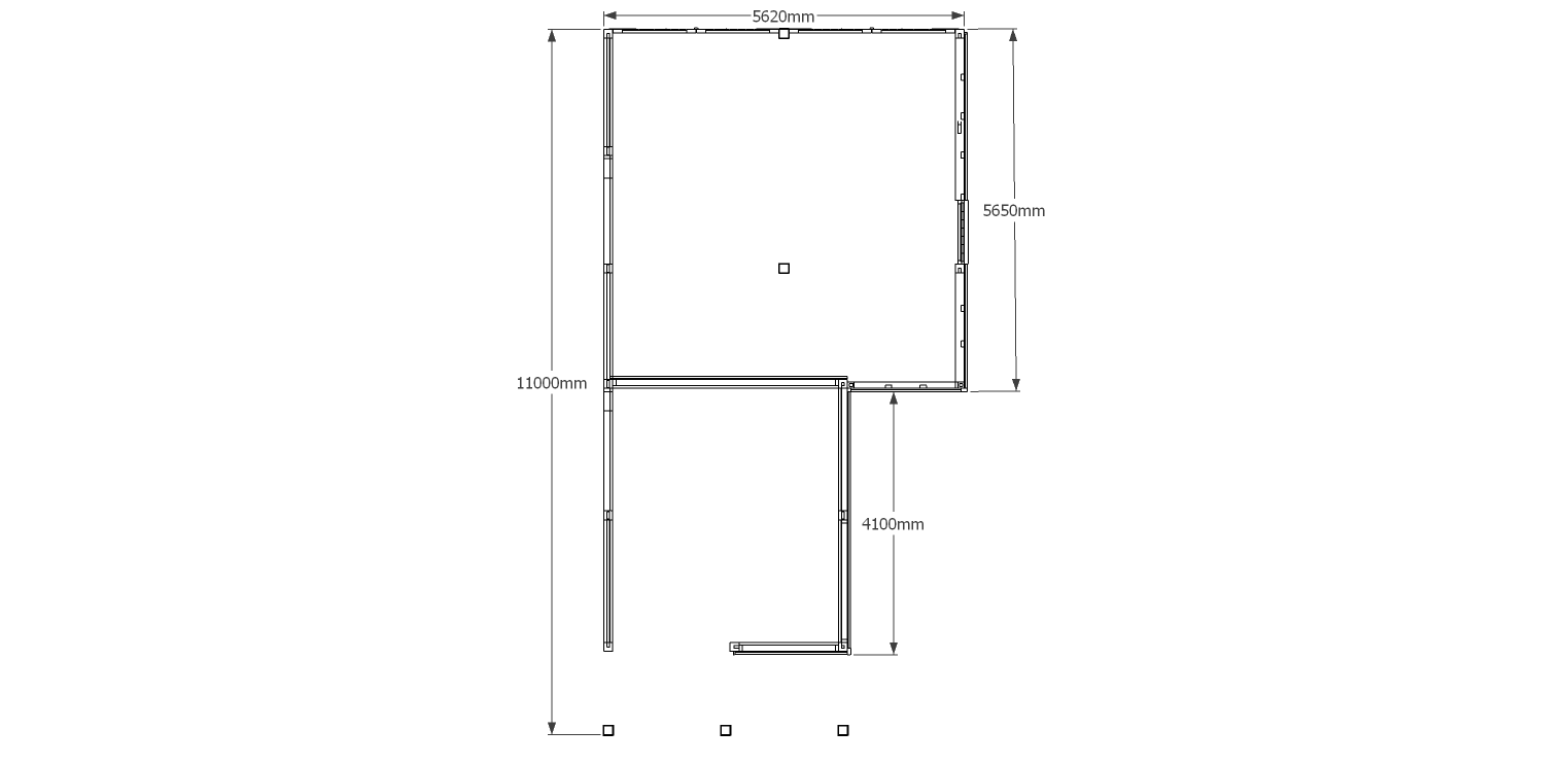
Dimensions
| G/F Area (sq m) | 51.88 |
| Total Area (sq m) | 51.88 |
| Length (m) | 5.62 |
| Depth (m) | 11 |
| Ridge Height (m) | 4 |
| Roof Pitch (deg) | 40 |
| Number of Bays | 6 |
| Location | West Sussex |





