Back to Two Bay Oak Garages
Two Bay Oak Garages - WS00371
This is a building we have previously constructed which you may want to use as a starting point for your design. All our buildings are designed and manufactured to your individual specifications.
Details
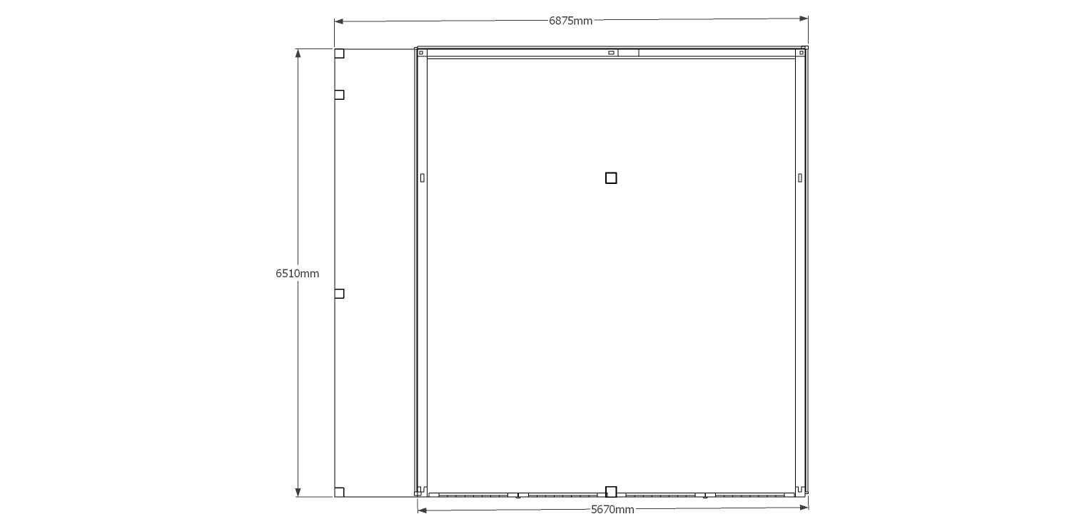
This building is a two bay garage enclosed with 2 pairs of garage doors at the front. It also has a log store on the left hand end.
Dimensions
| G/F Area (sq m) | 44.33 |
| Total Area (sq m) | 44.33 |
| Length (m) | 6.82 |
| Depth (m) | 6.5 |
| Ridge Height (m) | 4.4 |
| Roof Pitch (deg) | 40 |
| Number of Bays | 2 |
| Location | Yorkshire |




