Back to Two Bay Oak Garages
Two Bay Oak Garages - WS00369
This is a building we have previously constructed which you may want to use as a starting point for your design. All our buildings are designed and manufactured to your individual specifications.
Details
This 2 bay garage with gable ends and rear catslide is built on staddle stones instead of brickwork and is stepped down at the rear because of the sloping ground.
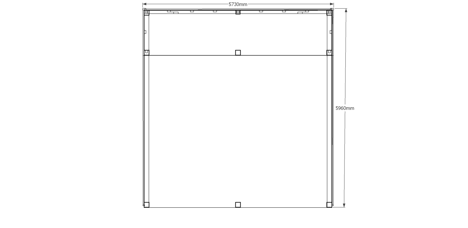
Dimensions
| G/F Area (sq m) | 33.41 |
| Total Area (sq m) | 33.41 |
| Length (m) | 5.64 |
| Depth (m) | 5.924 |
| Ridge Height (m) | 4.4 |
| Roof Pitch (deg) | 40 |
| Number of Bays | 2 |
| Location | Cumbria |



