Back to Oak Barns
Oak Barns - WS00366
Also in: Stables and Barns
This is a building we have previously constructed which you may want to use as a starting point for your design. All our buildings are designed and manufactured to your individual specifications.
Details
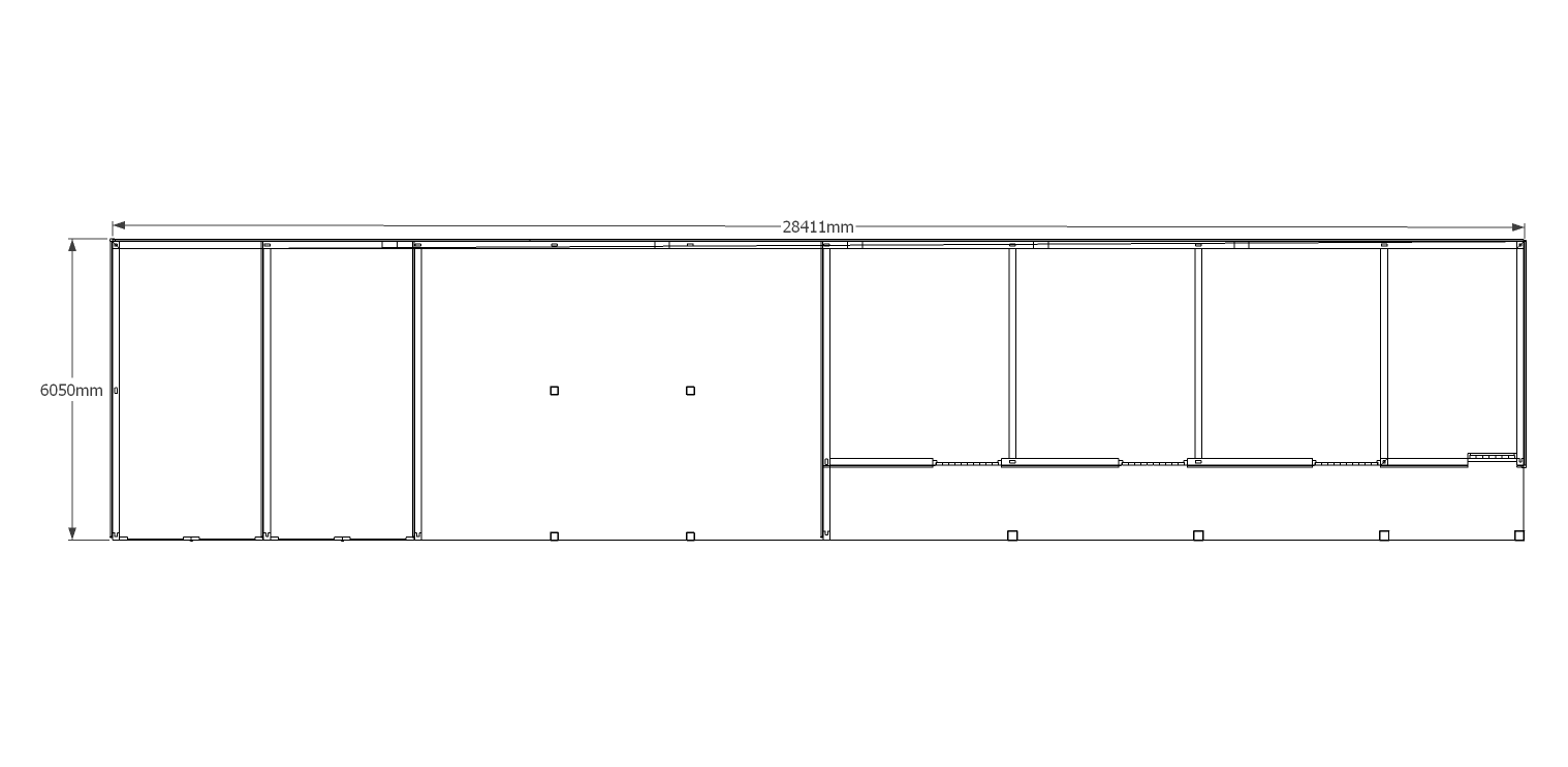
This 9 bay building has 2 seperate garages, both with garage doors to the front, 3 open bays used as a hay barn, then 3 stables and finally a feed store / tack room on the end. Each stable has a stable door and mullion window and the tack room has a mullion window and a solid single door. The fronts of the stables are set back so there is a walk way along the front.
Dimensions
| G/F Area (sq m) | 170.4 |
| Total Area (sq m) | 170.4 |
| Length (m) | 28.4 |
| Depth (m) | 6 |
| Ridge Height (m) | 5.6 |
| Roof Pitch (deg) | 45 |
| Number of Bays | 9 |
| Location | Berkshire |




