Back to Four Bays and Upwards
Four Bays and Upwards - WS00365
This is a building we have previously constructed which you may want to use as a starting point for your design. All our buildings are designed and manufactured to your individual specifications.
Details
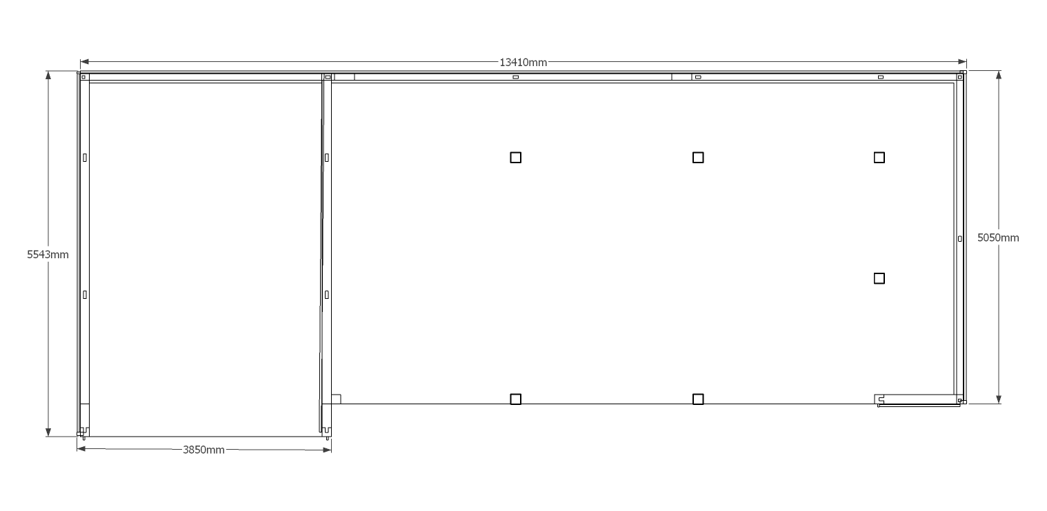
This is a 4 bay open fronted garage which has a wide opening on the left hand side. This left bay is also slightly deeper to accommodate a larger vehicle. The other 3 bays are standard size and there is a catslide roof on the right for storage.
Dimensions
| G/F Area (sq m) | 68.7 |
| Total Area (sq m) | 68.7 |
| Length (m) | 13.36 |
| Depth (m) | 5.5 |
| Ridge Height (m) | 3.9 |
| Roof Pitch (deg) | 37 |
| Number of Bays | 4 |
| Location | Suffolk |



