Back to Oak Framed Complexes
Oak Framed Complexes - WS00360
This is a building we have previously constructed which you may want to use as a starting point for your design. All our buildings are designed and manufactured to your individual specifications.
Details
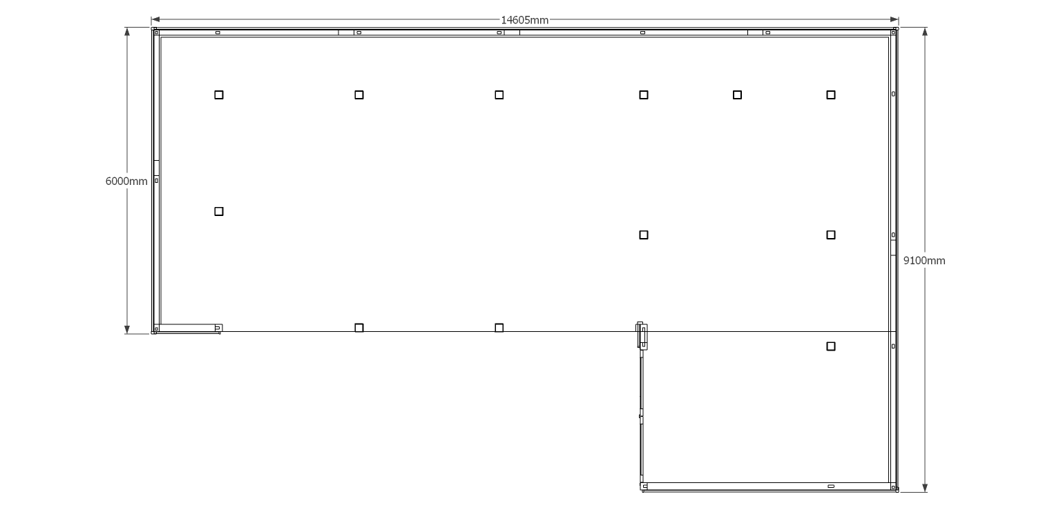
This ‘L’ shaped complex comprises of 3 open fronted garage bays, one bay with garage doors on the front and a workshop / store in the corner section. It has hipped roof ends with a catslide one end and a slate roof covering.
Dimensions
| G/F Area (sq m) | 130.54 |
| Total Area (sq m) | 130.54 |
| Length (m) | 14.505 |
| Depth (m) | 9 |
| Ridge Height (m) | 4.35 |
| Roof Pitch (deg) | 37 |
| Number of Bays | 6 |
| Location | Oxfordshire |




