Back to Two Bay Oak Garages
Two Bay Oak Garages - WS00355
This is a building we have previously constructed which you may want to use as a starting point for your design. All our buildings are designed and manufactured to your individual specifications.
Details
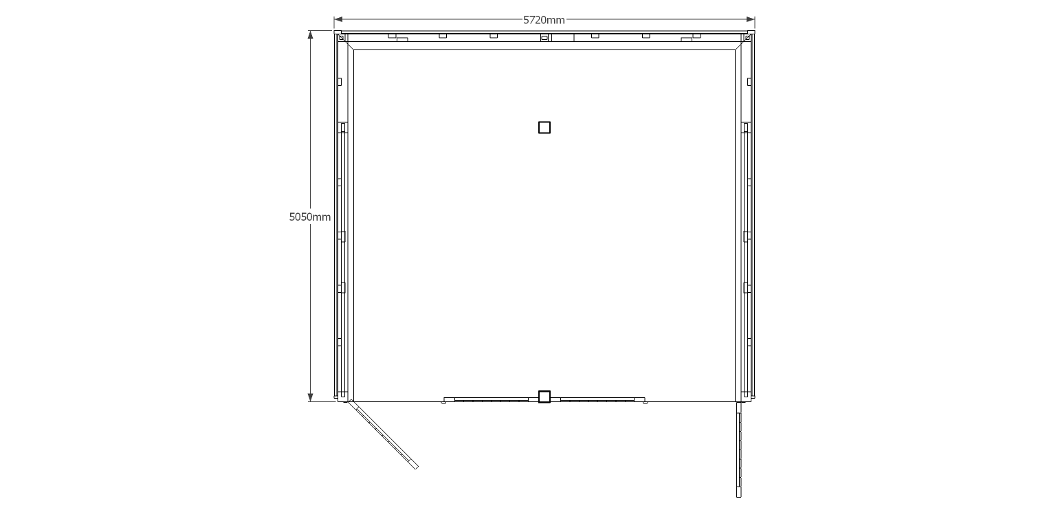
This is a 2 bay garage with gable ends and a rear catslide. It has 2 pairs of garage doors on the front to make it secure.
Dimensions
| G/F Area (sq m) | 28.6 |
| Total Area (sq m) | 28.6 |
| Length (m) | 5.72 |
| Depth (m) | 5 |
| Ridge Height (m) | 4 |
| Roof Pitch (deg) | 40 |
| Number of Bays | 2 |
| Location | Suffolk |



