Back to Two Bay Oak Garages
Two Bay Oak Garages - WS00349
This is a building we have previously constructed which you may want to use as a starting point for your design. All our buildings are designed and manufactured to your individual specifications.
Details
This is a two bay open fronted garage with gable ends and a rear catslide.
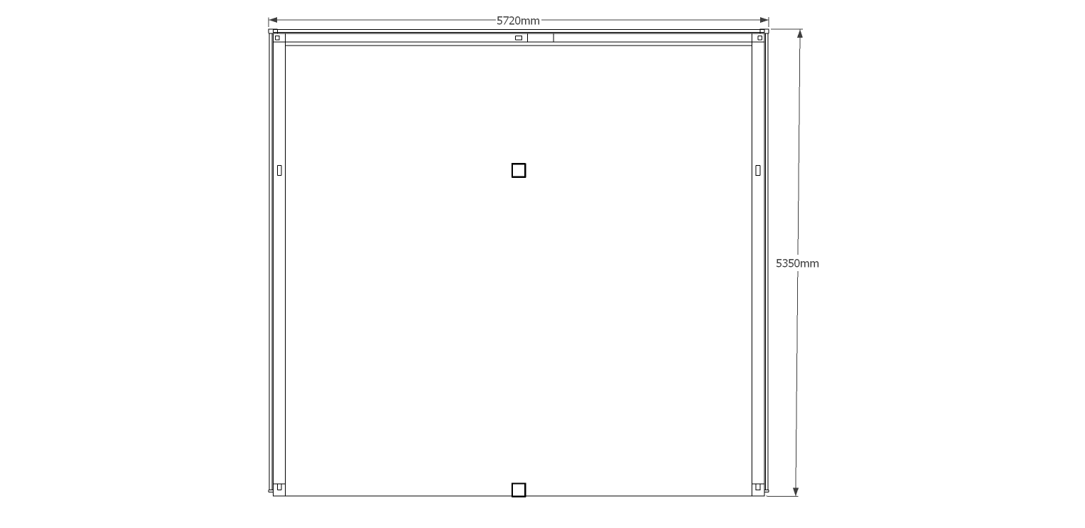
Dimensions
| G/F Area (sq m) | 29.79 |
| Total Area (sq m) | 29.79 |
| Length (m) | 5.62 |
| Depth (m) | 5.3 |
| Ridge Height (m) | 4.1 |
| Roof Pitch (deg) | 40 |
| Number of Bays | 2 |
| Location | Hertfordshire |



